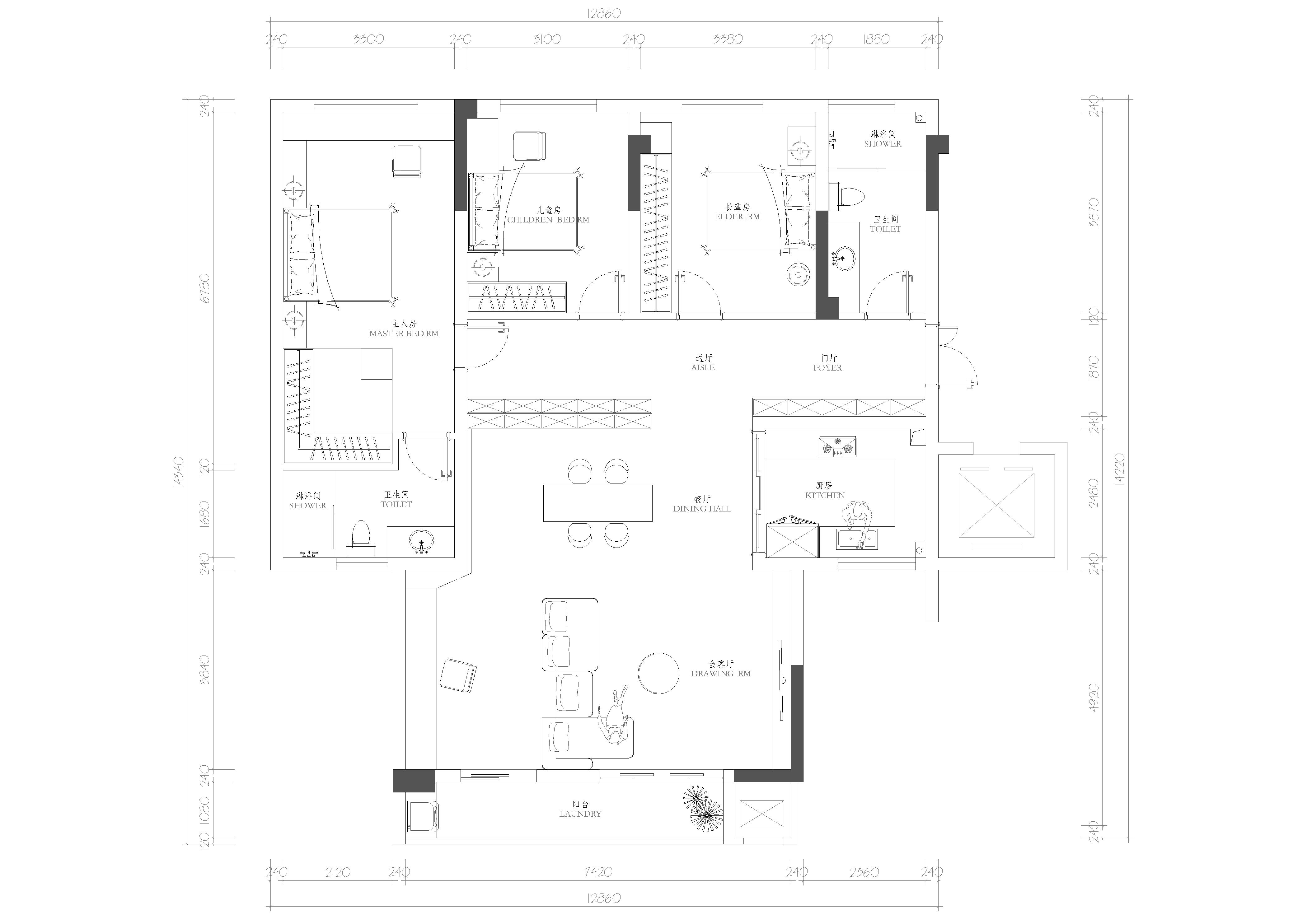
远洋高尔夫 三居室

户型:三居室 | 风格:新中式 | 面积:153m²


设计理念


设计师 / DESIGNER

董马祥

首席设计师

预约设计 更多作品

装修服务计划书

已有 1001 人获取装修服务定制计划

依您所需,生成专属服务计划:了解最新装修报价,推荐您看看喜欢的案例,了解合适的设计师,找到最近的在建工地等,为您提供各种专业支持